0
  • Acheter Du neuf
Dans un rayon de
Budget
Mini
Maxi

    Faites estimer votre bien par un professionnel

    Estimer votre bien

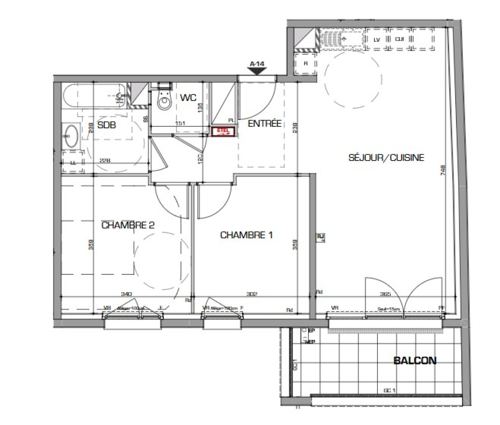
    Appartement T3

    Metz (57000)
    Réf : 16-T3

    S’insérant harmonieusement dans l’avenue de Strasbourg, la résidence CONFLUENCE adopte une façade sage et généreuse.

    Ses quatre étages, surmontés d’un attique, dominent l’avenue de Strasbourg, en léger recul de la chaussée pour laisser place à un agréable jardin d’agrément.

    Les enduits tons pierre et taupe se marient à la brique brune pour rythmer la façade, alors que la tuile anthracite habille les toitures.

    Côté jardin, les façades des deux immeubles se montrent plus exubérantes. Les avancées et les retraits se multiplient pour créer de profonds balcons ou terrasses, la brique brune disparaissant au profit d’une résille métallique où la végétation ne demande qu’à grimper.

    Les décrochés de niveaux, les toitures terrasses, le contraste entre les menuiseries blanches et les garde-corps gris…, tout concourt à animer les façades.

    Prix du bien 263 610 €
    Pièce(s) 3
    Chambre(s) 2

    Caractéristiques du bien

    Caractéristiques Valeurs
    Code postal 57000
    Surface habitable (m²) 65,90 m²
    Surface loi Carrez (m²) 65,90 m²
    Nombre de chambre(s) 2
    Nombre de pièces 3
    Etage 1
    Ascenseur OUI
    Nb de salle d'eau 1
    Mode de chauffage Gaz
    Type de chauffage TRAD_TYPE_CHAUFF_CHAUDIERE
    Format de chauffage Collectif
    Interphone NON
    Visiophone OUI
    Balcon OUI
    Terrasse NON
    Cave NON
    Nombre de parking 1
    Exposition Sud

    Infos financières

    Caractéristiques Valeurs
    Prix de vente honoraires TTC inclus 263 610 €
    Honoraires TTC à la charge acquéreur 3,13 %

    Bilans énergétiques

    DPE GES
    Ce bien vous intéresse ?
    Fieldset par défaut
    Fieldset par défaut
    Validation

    * Champs obligatoires

    Contacter l'agence
    Validation
    Les informations recueillies sur ce formulaire sont enregistrées dans un fichier informatisé par La Boite Immo agissant comme Sous-traitant du traitement pour la gestion de la clientèle/prospects de l'Agence / du Réseau qui reste Responsable du Traitement de vos Données personnelles. La base légale du traitement repose sur l'intérêt légitime de l'Agence / du Réseau. Elles sont conservées jusqu'à demande de suppression et sont destinées à l'Agence / au Réseau. Conformément à la loi « informatique et libertés », vous disposez des droits d’accès, de rectification, d’effacement, d’opposition, de limitation et de portabilité de vos données. Vous pouvez retirer votre consentement à tout moment en contactant directement l’Agence / Le Réseau. Consultez le site https://cnil.fr/fr pour plus d’informations sur vos droits. Si vous estimez, après avoir contacté l'Agence / le Réseau, que vos droits « Informatique et Libertés » ne sont pas respectés, vous pouvez adresser une réclamation à la CNIL. Nous vous informons de l’existence de la liste d'opposition au démarchage téléphonique « Bloctel », sur laquelle vous pouvez vous inscrire ici : https://www.bloctel.gouv.fr Dans le cadre de la protection des Données personnelles, nous vous invitons à ne pas inscrire de Données sensibles dans le champ de saisie libre.
    Ce site est protégé par reCAPTCHA, les Politiques de Confidentialité et les Conditions d'Utilisation de Google s'appliquent.

    Localisationdu bien